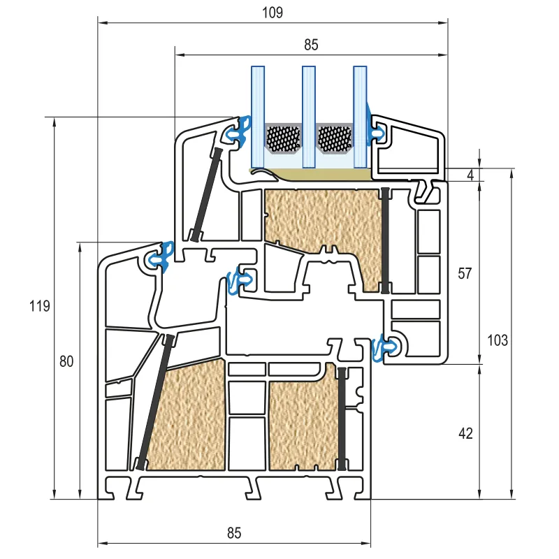
Windows and doors are typically the number one source of energy loss in homes based on studies and thermal imaging. The Energeto 8000ED profile easily solves this via a combination of advanced features meeting and even beating Passive House U-value requirements. Ultradur® carbon fibre inserts eliminate the effects of thermal bridging, while helping to create the multi-chamber design required for an efficient profile. Next, multiple chambers are filled with precision high-pressure foam giving the frame a substantial boost in insulation while also reducing its overall heat conductivity.
Passive house certified efficiency using Ultradur® inserts and foam-insulated cavities lead to long-term savings
