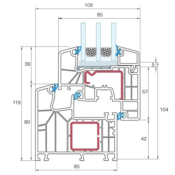
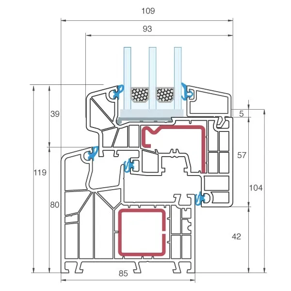
The Ideal 8000S provides a great base for custom energy efficient windows for those who don’t quite need Passive House levels of performance. It’s thicker profile depth of 85 mm, six internal chambers in the frame and three seals ensure great Uf-values (the u value of the frame itself without glass) to build on with double or triple glazing. The added depth also allows for a greater choice of glazing options in terms of the spacing between individual panes. Triple glazing can be installed up to 59 mm thick overall.
The benefits are reflected in the U-values of the Ideal 8000S. With triple 0.6g glazing and warm edge spacers, these can reach up to 0.81 W/m2K, just 0.01 short of Passive House!
Multi-chambers, three seals and a thicker frame guarantee excellent thermal insulation values
Insulate against Sound too
But the 8000S does more than just insulate against heat loss. Many of the same features that prevent heat from cold air infiltration also reduce the energy of external sound waves, i.e. reducing the amount of noise outside that you hear inside. Sound reduction of up to 44dB (RW) is possible when combined with modern triple glazing.
