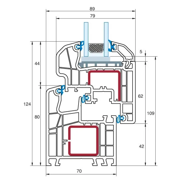
Effective insulation needs reliable sealing – inside and outside. In order to achieve this, Ideal 5000S window frames feature a centre seal with two hollow chambers, the outer chamber being separated from the inner one.
Modern manufacturing techniques and glazing technology enable the 5000S profile to achieve great thermal efficiency. Uw-values to 0.87 W/m2K can be reached with triple glazing and a warm edge spacer.
Great thermal insulation with double and triple-glazed options providing high thermal efficiency.
Keep the Noise Out – Soundproofing with the IDEAL 5000S
Noise pollution is an unfortunate fact of life with ever increasing urbanisation. Windows provide an often overlooked opportunity to remedy this. The multi-chamber design, with triple seals and insulating glazing, provides a sound reduction of up to 45dB (RW). Noise pollution in a village is typically 60dB, whereas in cities it can reach 70dB. Choosing the right windows will ensure a peaceful living environment and sleeping conditions. For this reason, we offer multiple levels of sound reducing glazing.
