Aluplast’s innovative IDEAL Design profile is the result of years of experience and brings a versatile, elegant yet affordable product to the market. Thanks to the product’s durable uPVC surface and precisely engineered multi-chamber internal structure, customers can enjoy excellent energy-efficiency and soundproofing without compromising on a narrow sash and slender design.
Given this innovative combination of properties, the profile is a great choice to set a minimalistic accent for modern building façades, when installed as a window or French balcony door alike. A wide range of decor options and RAL quality assured durable colours can then also be selected from to ensure that the window harmoniously matches masonry or the front door. From timeless classic white or anthracite, to strong blues, the choice is yours.
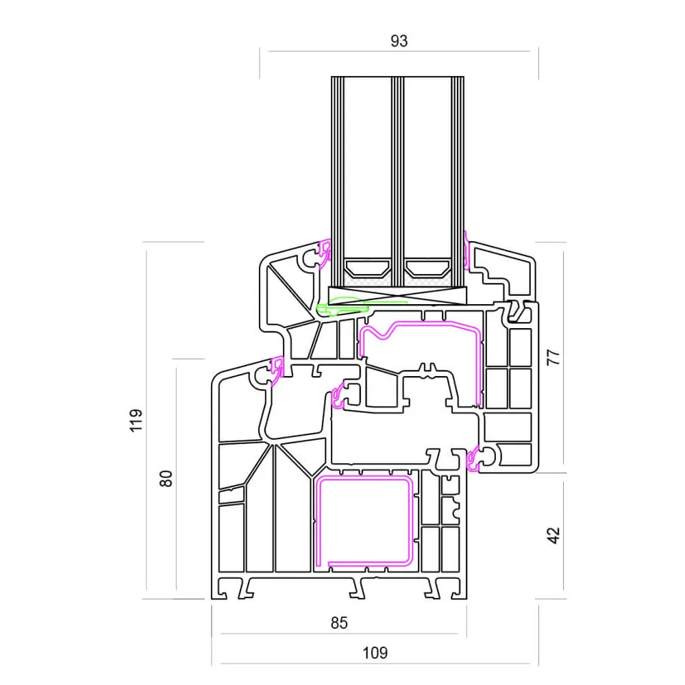
Superior thermal insulation
Given its impact on home energy consumption and the corresponding costs and saving possibilities, thermal insulation plays a decisive role in window purchase choices.
Aluplast’s uPVC IDEAL Design window profile puts forward an impressive candidate in this respect. The six central chambers and three sealing levels create the ideal combination to increase profile strength. They protect buildings from external temperatures and keep water out to create a pleasant home climate, for example, which can also prevent mould growth.
